Продается дом, 154.9 кв.м., /2 эт

Обзор
Стоимость
8 500 000
Комнат в доме3
Категория землиИЖС
Тип комнатизолированные
Право собственностиПосредник
Тип парковкиГараж
Кадастровый номер участка86:12:0103019:14
Категория земли AvitoИндивидуальное жилищное строительство (ИЖС)
Способ связи avitoПо телефону и в сообщениях
Материал стен (Авито дома)Брус
Водоснабжение avitoЦентральное
Канализация avitoСептик
Газ avitoВ доме
Тип строенияДом
Площадь, кв.м.154.9
Площадь участка, сот8
Этажность2
Материал стенДеревянный
Адрес
Населенный пунктХанты-Мансийск
Улицаулица Матросова
Номер дома8
В избранное Дом 154,9 м² на участке 8 сот. в городе

Уважаемые покупатели, продается 2х этажный дом 154,9 кв.м. на участке 8 соток в Самарово.

Инфраструктура: стоит отметить исключительно удачную локацию дома. Отличное месторасположение, тихий спальный район при этом всё необходимое находится в пешей доступности: торговые центры Сатурн, Галактика, Меридиан и другие продуктовые и хозяйственный магазины. Школа № 2, муниципальный детский сада Ёлочка; АвтоРечВокзал; пункт выдачи WB; центры дополнительного образования, спортивный зал, набережная, торговые центры, площадь Свободы, стелла.

Дом частично обшит сайдингом, материал для дальнейшей работы есть. Крыша из металлочерепицы.

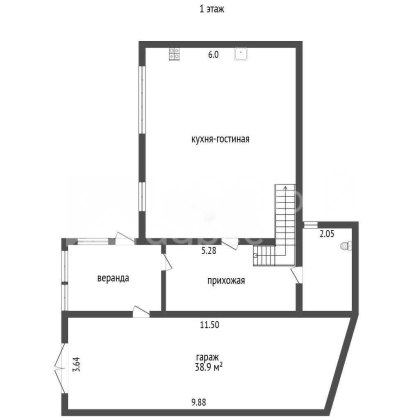
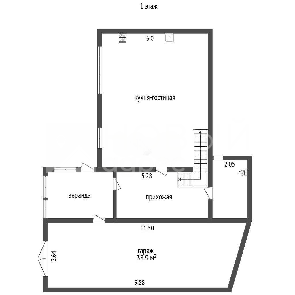
Планировка: все помещения правильной формы. 2 этажа.

Ремонт: выполнен косметический ремонт.Отопление в доме газовое (установлен газовый котел). На первом этаже тёплый водяной пол и батарея. Коммунальные платежи для такой площади очень комфортные. Зимой максимальное 6-8 тыс. рублей. Центральная вода, Септик на 14 кубов.

Имеется отпапливаемая веранда с выходом в гараж на 2 машиноместа. Со второго этажа есть отдельный выход на улицу. На втором этаже располагается три комнаты, на первом этаже кухня-гостиная.

Бонус для покупателей: При продаже остаётся мебель и часть техники.

Возможна покупка с использованием наличных денежных средств/ипотечных средств/материнского капитала/семейной ипотеки.

Дополнительные вопросы можно уточнить по телефону.

Полное юридическое оформление сделки мы берем на себя.

Хотите посмотреть в живую? Отлично, мы организуем показ!

НОВЫЙ АДРЕС - с нами быстро, выгодно, надежно !!! А ТАКЖЕ А НАШЕМ АГЕНТСТВЕ САМАЯ НИЗКАЯ КОМИССИЯ. С нами выгодно!


Позвоните и запишитесь на просмотр, завтра этого варианта может уже и не быть!

Расположение

Важно! На карте не всегда указано точное местоположение. Более точную информацию можно узнать у менеджера, разместившего объект