Продается однокомнатная квартира, 37.8 кв.м., 2/3 эт
| Стоимость | 2 000 000 |
|---|---|
| Ремонт | Косметический |
| Балкон | Нет |
| Доля в квартире | Нет |
| Онлайн показ | могу провести |
| Статус Недвижимости Авито | Квартира |
| Право собственности | Посредник |
| Тип парковки | Открытая во дворе |
| Способ связи avito | По телефону и в сообщениях |
| Комнат в квартире | 1 |
| Площадь, кв.м. | 37.8 |
| Жилая площадь | 16 |
| Площадь кухни, кв.м. | 9 |
| Этаж | 2 |
| Этажность | 3 |
| Материал стен | Панельный |
| Населенный пункт | деревня Ярки |
|---|---|
| Улица | улица ягодная |
| Номер дома | 14 |
Уникальное предложение!
Продается 1к комнатная квартира 37 м² в капитальном 3-этaжнoм доме (д. Яpки)
ТОЛЬКО в нашем агентстве комиссия ВСЕГО 35.000+1% от стоимости объекта, а не 3% или 2%+15.000, как в других агентствах недвижимости нашего города!!!! Поэтому с нами ВЫГОДНО покупать и продавать!
Инфраструктура: стоит отметить исключительно удачную локацию дома. Рядом лесной массив и речка. Bo дворе имеется детская площадка, рядом магазины, новая школа/детский сад, фельдшерский пункт, церковь.
Расстояние до центра города 29 км, ежедневно ходит рейсовый автобус.
Ремонт: ремонт косметический, выполнен в сдержанной цветовой гамме. Это придало жилью легкость и умиротворение. Стены пропитаны теплом и уютом. в квартире. Во всех комнатах двухкамерные металлопластиковые окна с тройным остеклением. Установлены дорогие полотна межкомнатных дверей. Квартира НЕ НУЖДАЕТСЯ в ремонте, соответственно Вы экономите свои средства.
Дом 2013 года постройки. В квартире установлен индивидуальный газовый котел, что позволит существенно сэкономить на коммунальных платежах, также это удобно в холодные зимы (самостоятельно регулируешь температуру в квартире). Центральный газ, канализация, водоснабжение. Коммунальные платежи низкие.
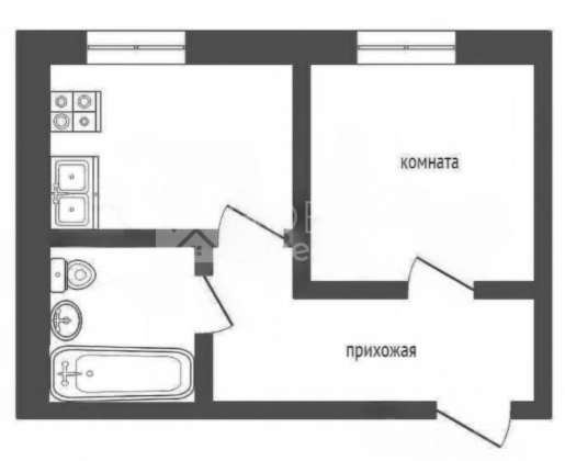
Планировка: просторная меблированная 1-комнатная квартира комфортной планировки, общей площадью 37 м². Планировка квартиры продумана до мелочей для Вашего комфортного проживания в ней, она включает в себя: просторную кухню, где вся семья будет проводить свободное время вместе; просторная комната; высота потолков 2,73 м; совмещенный санузел с душевой кабиной. Окна в квартире выходят во двор.
Квартира светлая, теплая, полностью готова к проживанию и не требует никаких вложений. ЗАХОДИ и ЖИВИ!
Бонус для покупателя: в квартире имеется все необходимое для комфортного проживания. Новому владельцу остается практически вся мебель и бытовая техника (представлено на фото), благодаря чему можно заехать в кратчайшие сроки.
По документам:
Мой клиент - единственный СОБСТВЕННИК. Покажем все документы, собственник будет присутствовать на сделке. Под ИПОТЕКУ ПОДХОДИМ, БЕСПЛАТНО поможем Вам с одобрением. Мы в ПРЯМОЙ ПРОДАЖЕ. Полностью готовый к продаже пакет документов. Быстрый выход на сделку.
Позвоните и запишитесь на просмотр прямо сейчас.
НАШИ ПРЕИМУЩЕСТВА:
Работаем с ИПОТЕКОЙ, материнским капиталом и опекой.
Полное юридическое оформление сделки мы берем на себя.
Показы в любое удобное для вас время по договоренности.
Квартиру можно приобрести в ипотеку или использовать материнский капитал! В нашей компании есть ипотечный брокер, оказывающий весь комплекс услуг по приобретению квартиры в ипотеку. Мы берем всю рутинную работу по оформлению документации на себя!
Хотите посмотреть на квартиру вживую? Отлично, мы организуем показ!
НОВЫЙ АДРЕС - с нами быстро, выгодно, надежно !!!























