Продается однокомнатная квартира, 58.5 кв.м., 6/6 эт

Обзор
Стоимость
6 200 000
РемонтКосметический
БалконБалкон
Доля в квартиреНет
Онлайн показмогу провести
Статус Недвижимости АвитоКвартира
Право собственностиПосредник
Тип парковкиОткрытая во дворе
Способ связи avitoПо телефону и в сообщениях
Узаконена ли планировкаЕсть
Есть ли право собственностиЕсть
Комнат в квартире1
Площадь, кв.м.58.5
Площадь кухни, кв.м.10.3
Этаж6
Этажность6
Материал стен Кирпич
Адрес
Населенный пунктХанты-Мансийск
Улицаулица Комсомольская
Номер дома29
В избранное Продается однокомнатная квартира 58,5 кв.м. в центре города.

Продается однокомнатная квартира в центральной части города.

В шаговой доступности: улицы: Энгельса, Пионерская, Рознина.

Инфраструктура: хорошая транспортная развязка. Рядом располагается остановка общественного транспорта, трансагенство, продуктовые магазины, ТЦ "Гостиный двор", кафе и рестораны, детские сады №20 "Сказка", №1 "Колокольчик", Мамина радость, школы №1, №11, филиал поликлиники.

Квартира в кирпичном доме 2002 года постройки, что гарантирует отличную шумоизоляцию и тепло в квартире. Открытая парковка во дворе. Чистые подъезды, тихие соседи. Коммунальные платежи около 5-6т.р

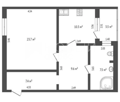
Общая площадь: 58,5 кв.м.

Кухня 10,3 кв.м.

Балкон: 3,5 кв.м.

Ремонт: выполнен косметический ремонт.

Планировка: Очень комфортная планировка, все помещения правильной формы. Просторная входная зона. Кухня 10,3 кв.м. с выходом на балкон 3,5 кв.м. Светлая спальня 23,7 кв.м. Совмещенный санузел 7,5 кв.м. Окна выходят на две стороны дома (распашонка), что обеспечит комфортные условия в жаркую погоду.

Бонус для покупателя: после продажи остается мебель и техника.

Варианты приобретения: возможна покупка с использованием наличных денежных средств/ипотечных средств/материнского капитала/семейной ипотеки.

НАШИ ПРЕИМУЩЕСТВА:
Работаем с ИПОТЕКОЙ, материнским капиталом и опекой.
Полное юридическое оформление сделки мы берем на себя.
Показы в любое удобное для вас время по договоренности.
Квартиру можно приобрести в ипотеку или использовать материнский капитал/субсидию! В нашей компании есть ипотечный брокер, оказывающий весь комплекс услуг по приобретению квартиры в ипотеку. Мы берем всю рутинную работу по оформлению документации на себя!
Хотите посмотреть на квартиру в живую? Отлично, мы организуем показ!

НОВЫЙ АДРЕС - с нами быстро, выгодно, надежно !!! А ТАКЖЕ А НАШЕМ АГЕНТСТВЕ САМАЯ НИЗКАЯ КОМИССИЯ 1%+35К, что значительно ниже других (3%) и (2%+15к). С нами выгодно!


Позвоните и запишитесь на просмотр, завтра этого варианта может уже и не быть!

Расположение

Важно! На карте не всегда указано точное местоположение. Более точную информацию можно узнать у менеджера, разместившего объект