Продается 2-х комн. квартира, 42.8 кв.м., 2/2 эт

Обзор
Стоимость
4 350 000
РемонтКосметический
БалконНет
Доля в квартиреНет
Онлайн показмогу провести
Статус Недвижимости АвитоКвартира
Право собственностиПосредник
Тип парковкиОткрытая во дворе
Способ связи avitoПо телефону и в сообщениях
Комнат в квартире2
Площадь, кв.м.42.8
Площадь кухни, кв.м.8
Этаж2
Этажность2
Материал стенДеревянный
Адрес
Населенный пунктХанты-Мансийск
Улицаулица Крупской
Номер дома20
В избранное Продается 2х комнатная квартира в деревянном исполнении.

Продается двухкомнатная квартира в деревянном доме общей площадью 42,8 кв.м.

О доме: деревянный дом, расположен в центральной части гopoдa, cocтoит из 2 этaжeй, 1977 г. постройки, без лифта.

В шаговой доступности: Калинина, Пионерская, Рознина, Мира.

Инфраструктура: продуктовые и хозяйственные магазины, аптека, Окружная клиническая больница, остановка общественного транспорта, ТД "Виктор".

Общая площадь: 42,8 кв.м.

Кухня 8 кв.м.

Ремонт: выполнен косметический ремонт.

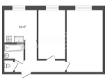
Планировка: Все помещения правильной формы. просторная входная зона. Кухняя 8 кв.м. с необходимой мебелью и техникой. Две комнаты, раздельный санузел.
Особенности квартиры: Удобная транспортная развязка, до центра города пешком 10 минут.

Бонус для покупателя: мебель и техника по договоренности.

Варианты приобретения: возможна покупка с использованием наличных денежных средств/ипотечных средств/материнского капитала/семейной ипотеки.

НАШИ ПРЕИМУЩЕСТВА:
Работаем с ИПОТЕКОЙ, материнским капиталом и опекой.
Полное юридическое оформление сделки мы берем на себя.
Показы в любое удобное для вас время по договоренности.
Квартиру можно приобрести в ипотеку или использовать материнский капитал/субсидию! В нашей компании есть ипотечный брокер, оказывающий весь комплекс услуг по приобретению квартиры в ипотеку. Мы берем всю рутинную работу по оформлению документации на себя!
Хотите посмотреть на квартиру в живую? Отлично, мы организуем показ!

НОВЫЙ АДРЕС - с нами быстро, выгодно, надежно !!! 

Позвоните и запишитесь на просмотр, завтра этого варианта может уже и не быть!

Расположение

Важно! На карте не всегда указано точное местоположение. Более точную информацию можно узнать у менеджера, разместившего объект