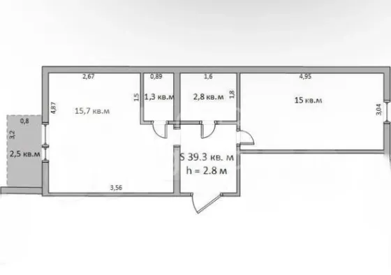
Продается однокомнатная квартира, 39.3 кв.м., 6/6 эт
| Стоимость | 6 100 000 |
|---|---|
| Ремонт | Косметический |
| Балкон | Балкон |
| Доля в квартире | Нет |
| Онлайн показ | могу провести |
| Статус Недвижимости Авито | Квартира |
| Право собственности | Посредник |
| Тип парковки | Открытая во дворе |
| Способ связи avito | По телефону и в сообщениях |
| Комнат в квартире | 1 |
| Площадь, кв.м. | 39.3 |
| Жилая площадь | 15 |
| Площадь кухни, кв.м. | 15 |
| Этаж | 6 |
| Этажность | 6 |
| Материал стен | Кирпич |
| Населенный пункт | Ханты-Мансийск |
|---|---|
| Улица | улица Свободы |
| Номер дома | 15 |
Продается 1 комнатная просторная квартира 39,3 кв.м,.
Дом построен в 2018 году, подходит под субсидию и ипотеку любого банка! Расположен в живописном районе города с прекрасными видовыми характеристиками - из одного окна вид на Стеллу, с другого - на реку Иртыш!
Супермаркеты, стоматология, спортивный центр, детский сад, набережная - всё расположено в радиусе жилого комплекса.
В шаговой доступности: улицы Гагарина, Мичурина, Краснопартизанская, а также переулки Рабочий и Советский.
Инфраструктура: стоит отметить исключительно удачную локацию дома. Дом расположен в спальном районе Ханты-Мансийска. Он прекрасно подойдет для проживания с детьми, так как здесь есть детские площадки для детей разного возраста. Рядом с домом хорошая развязка транспорта, продуктовые и хозяйственные магазины, аптека, рядом остановки общественного транспорта, филиал детской и взрослой поликлиники, химчистка, фитнес клуб, кафе. В пешей доступности: торговые центры Сатурн, Галактика, Меридиан и другие продуктовые и хозяйственный магазины. Школа № 2, муниципальный детский сада Ёлочка; АвтоРечВокзал; пункт выдачи WB; центры дополнительного образования, спортивный зал, набережная, торговые центры, площадь Свободы, Стелла. Также в 5 минутах езды школа №4, гимназия, Ледовый дворец, Аквапарк, Хвойный Урман. Мамонты.
Порадует всю семью и живописный природный парк Самаровский чугас.
Общая площадь: 39,3 кв.м.+ балкон 2.5 кв.м.
Ремонт: выполнен качественный косметический ремонт.
Планировка: Светлая, очень уютная квартира с современным ремонтом в светлых тоннах, с отличным видом на реку и Стеллу.
Удобная планировка квартиры и продумана до мелочей для Вашего комфортного проживания в ней. Просторная комната 15м² . Кухня-гостиная 15,7 кв.м. с выходом на балкон. Также имеется кондиционер.. Раздельный санузел.
А из окон квартиры открывается прекрасный вид на реку Иртыш, Церковь и Стеллу.
Особенности квартиры: в подарок остается мебель и техника: кухня с встроенной техникой (варочная панель, духовка, посудомоечная машинка), прихожая и шкафы.
Квартира очень теплая! В нашем доме живут порядочные люди, в основном семейные.
Варианты приобретения: возможна покупка с использованием наличных денежных средств/ипотечных средств/материнского капитала. Оперативный показ в удобное время.
НАШИ ПРЕИМУЩЕСТВА:
Работаем с ИПОТЕКОЙ, материнским капиталом и опекой.
Полное юридическое оформление сделки мы берем на себя.
Показы в любое удобное для вас время по договоренности.
Квартиру можно приобрести в ипотеку или использовать материнский капитал/субсидию! В нашей компании есть ипотечный брокер, оказывающий весь комплекс услуг по приобретению квартиры в ипотеку. Мы берем всю рутинную работу по оформлению документации на себя!
Хотите посмотреть на квартиру в живую? Отлично, мы организуем показ!

















































