Продается жилой комплекс, , /4 эт
Обзор№ - 2482
| Стоимость | 131 481 |
|---|---|
| Ремонт | Предчистовая |
Адрес
| Населенный пункт | Ханты-Мансийск |
|---|---|
| Район города | Нагорный |
| Улица | улица Гагарина |
ДОМ СДАН ДОСРОЧНО
Новый жилой комплекс состоит из 2 секций, 4 этажей
- Окончание строительства: Дом сдан
Расположен на возвышенности между центром города и Самарово!
Общие характеристики:
- Дом кирпичный
- В каждом подъезде по одному лифту, грузопассажирский до 1000 кг.
- Отличительной особенностью комплекса является малоэтажность, не предполагающая шума и многолюдности, характерных для современных жилых объектов-высоток.
- Фактически, на территории в гектар, размещено в двух домах около 100 квартир, а это значит, достаточно места и детям, и взрослым, и автомобилям.
- Совсем рядом с объектом располагаются зеленая лесная зона, спортивные комплексы — биатлонный, стадион Югра-Атлетикс. В пешеходной доступности школа и детский сад, продуктовый магазин.
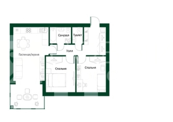
Характеристика квартир:
- Отделка: предчистовая без сан. техники с разводкой
- Пол - улучшенная стяжка
- Потолок - плиты перекрытия, монолитные участки
- Стены - гипсовая штукатурка
- Установлены розетки и выключатели
- Оконные проемы - кирпичная кладка
- Окна высотой 2,5 м (Теплый пол и радиатор отопления)
- Отопление - газовая котельная на крыше
- Пище приготовление - электрическое
Инфраструктура комплекса:
- Двор закрытая территория
- Отличная детская площадка
- Коммерческих помещений нет
- Открытая парковка
В продаже остались однокомнатные квартиры от 46 кв.м.































































