Продается жилой комплекс, , 7/10 эт
Обзор№ - 2469
| Стоимость | 120 000 |
|---|---|
| Ремонт | Чистовая |
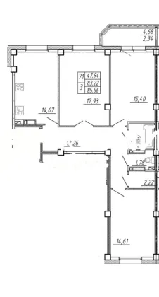
| Этаж | 7 |
| Способ связи avito | По телефону и в сообщениях |
Адрес
| Населенный пункт | Ханты-Мансийск |
|---|---|
| Район города | Гидронамыв |
| Улица | улица Анны Коньковой |
|
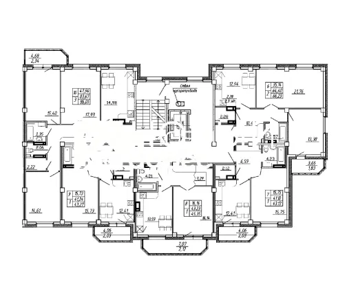
Современный жилой комплекс ДОМ СДАН - II квартал 2021 года Жилой комплекс 7 секций, 10 этажей Расстояние до реки Иртыш – 500 метров Общие характеристики:
Характеристика квартир:
Инфраструктура комплекса:
В продаже остались трехкомнатные квартиры от 82,56 кв.м. |





























